2811 Amberley Privado

Ontario CA 91762

$644,300

Status: Active


Property Details

Description

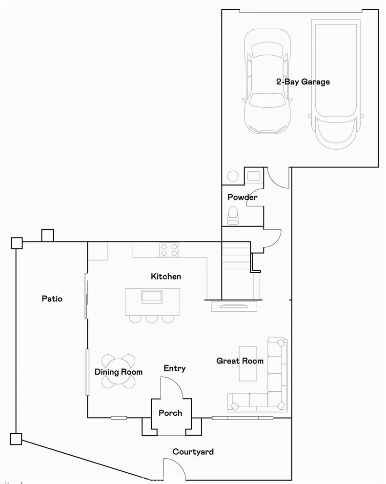
NEW CONSTRUCTION! Includes Upgraded Flooring! This two-story home is designed with hosting special gatherings in mind, with the first floor sharing an open layout between the kitchen, dining room and Great Room. Upstairs is a versatile loft that can serve as an additional shared living space, office or play area, depending on the household's needs. There are two secondary bedrooms on the second floor, along with a luxe owner's suite sitting privately in its own corner with an en-suite bathroom and walk-in closet. Ashbrook is a collection of new condominiums for sale in the Falloncrest master-planned community in Ontario, CA. Enjoy a multitude of onsite amenities, such as a social clubhouse, sparkling swimming pool, parks, picnic areas and a tot lot for the little ones to enjoy. A variety of shopping options are within close reach at Ontario Mills and Victoria Gardens. Or, enjoy some leisure at local spots such as San Antonio Winery or El Prado Golf Course.

Map Location


  • Log in
  • ×