14273 Sinclair Circle

Magalia CA 95954

$175,000

Status: Active


Property Details

Description

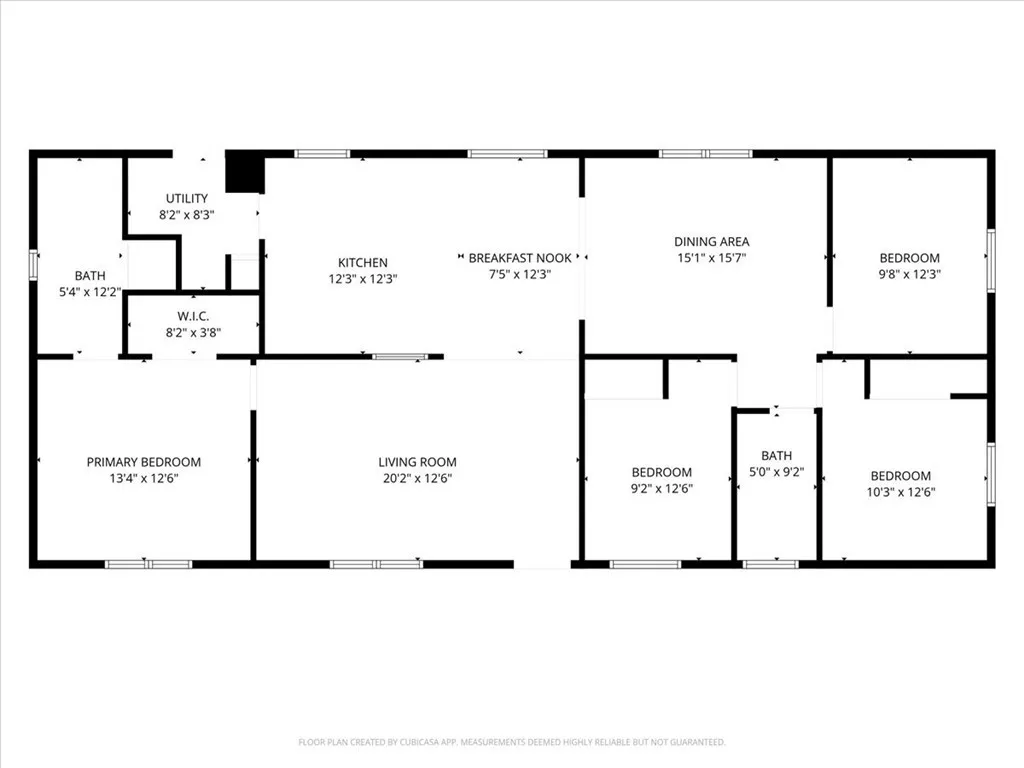
Rare opportunity to own a 4-bedroom manufactured home on a permanent foundation in the desirable Paradise Pines community of Magaliafully lendable and move-in ready. Recent updates include a new roof installed in Summer 2023, newer exterior paint, and over $4,000 in tree work completed to enhance fire safety and peace of mind. This 1,560 square foot home on a 0.24-acre lot offers a spacious and flexible layout, featuring a bonus room currently used as a dining area and previously enjoyed as a family/play room, along with a fully fenced backyard and detached shed for additional storage. As part of the Paradise Pines Property Owners Association, residents enjoy access to an array of amenities including a community pool, tennis courts, picnic areas, scenic walking and hiking trails, and year-round community events. Comfort, functionality, and community come together in this affordable offeringdont miss it!

Map Location


  • Log in
  • ×